Менеджеры компании с радостью ответят на ваши вопросы, произведут расчет стоимости услуг и подготовят коммерческое предложение.
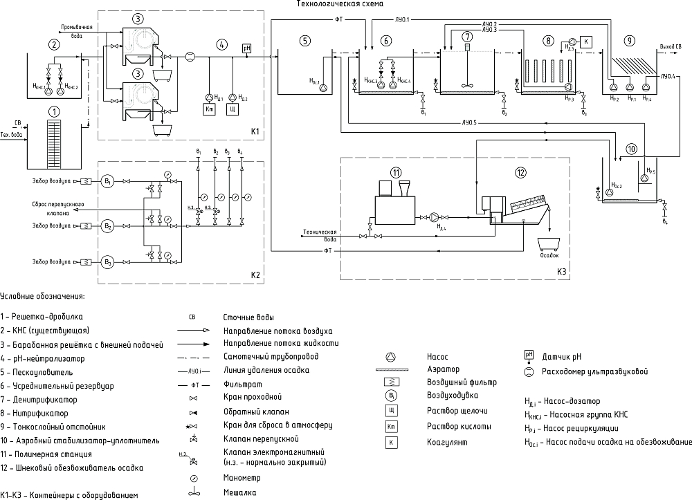
Хозяйственно-бытовой сток - 50 м3 в сутки, предприятие по перегрузке мусора, МО в Новосибирске
-
Для регистрации оборудования авторизуйтесь/зарегистрируйтесь на сайте.
После регистрации оборудования Вы получаете персональную скидку на сопутствующие материалы.


